Homesearch Logo

£285,000

Jackson Stops Country

Swanley, Swanley, BR8 8FB

  • Bedrooms

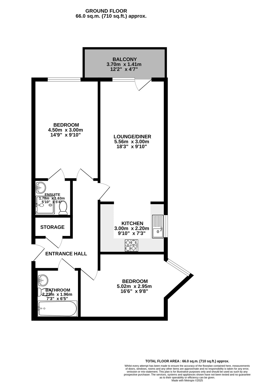
    2
  • Bathrooms

    2
  • Internal area

  • Property type

    Flat
  • Year built

    Ask Agent

Key facts

  • Lift
  • Station (Within 1.2 miles)

Property description

Located in the Downsview Development situated ideally for swift access to Swanley Station is this fantastic 2 bedroom, 2 bathroom first floor apartment. Providing an impressive 64m2 living space...

Brochures

No information available. Please contact the agent for details.

Property Location

Swanley, Swanley, BR8 8FB

Nearest stations

Nearest schools

Utility supply

Electricity
Water
Heating
Broadband
Sewerage

Rights and restrictions

Private rights of way
Public rights of way
Listed property
Restrictions

Broadband speed