Homesearch Logo

£599,995

Greenslade Taylor Hunt

Hayne Farm, Hayne Farm, EX14 3PD

  • Bedrooms

    5
  • Bathrooms

    3
  • Internal area

    1,823 sqf
  • Property type

    House
  • Year built

    Ask Agent

Property description

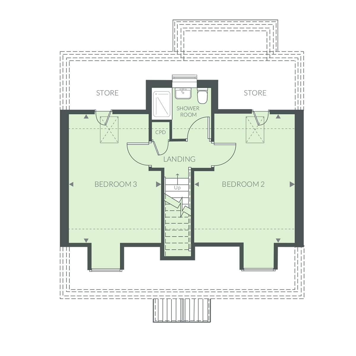
Plot 296, The Violet is a beautiful five bedroom property with a double garage and parking. The Violet is set on three floors, the ground floor comprises of a kitchen/dining/living room, study, utility and WC. To the first floor is where the master is located which is compete wit...

Additional text is available below.

Brochures

No information available. Please contact the agent for details.

Property Location

Hayne Farm, Hayne Farm, EX14 3PD

Nearest stations

Nearest schools

Utility supply

Electricity
Water
Heating
Broadband
Sewerage

Rights and restrictions

Private rights of way
Public rights of way
Listed property
Restrictions

Broadband speed