Homesearch Logo
Under Offer

£350,000

Bradley Hall

Durham, Durham, DH1 3FD

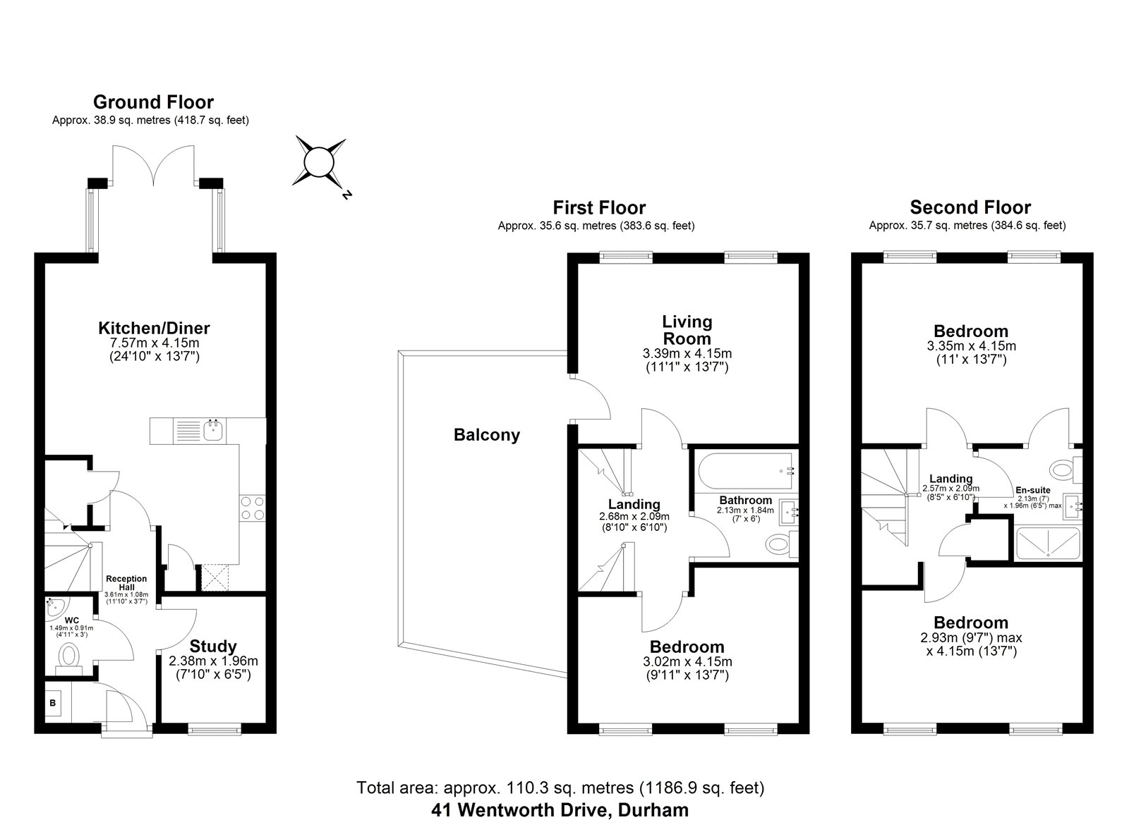
  • Bedrooms

    3
  • Bathrooms

    2
  • Internal area

  • Property type

    House
  • Year built

    Ask Agent

Property description

We are delighted to offer for sale this exquisite home in one of the most exclusive developments in Durham City. This David Wilsons home fronts onto the open green space and as a result has a great outlook and additional safe children’s play area. ‘The Cannington’ is an impressiv...

Additional text is available below.

Brochures

No information available. Please contact the agent for details.

Property Location

Durham, Durham, DH1 3FD

Nearest stations

Nearest schools

Utility supply

Electricity
Water
Heating
Broadband
Sewerage

Rights and restrictions

Private rights of way
Public rights of way
Listed property
Restrictions

Broadband speed