Homesearch Logo

£230,000

Robinson Jackson

Gillingham, Gillingham, ME7 1HL

  • Bedrooms

    2
  • Bathrooms

    1
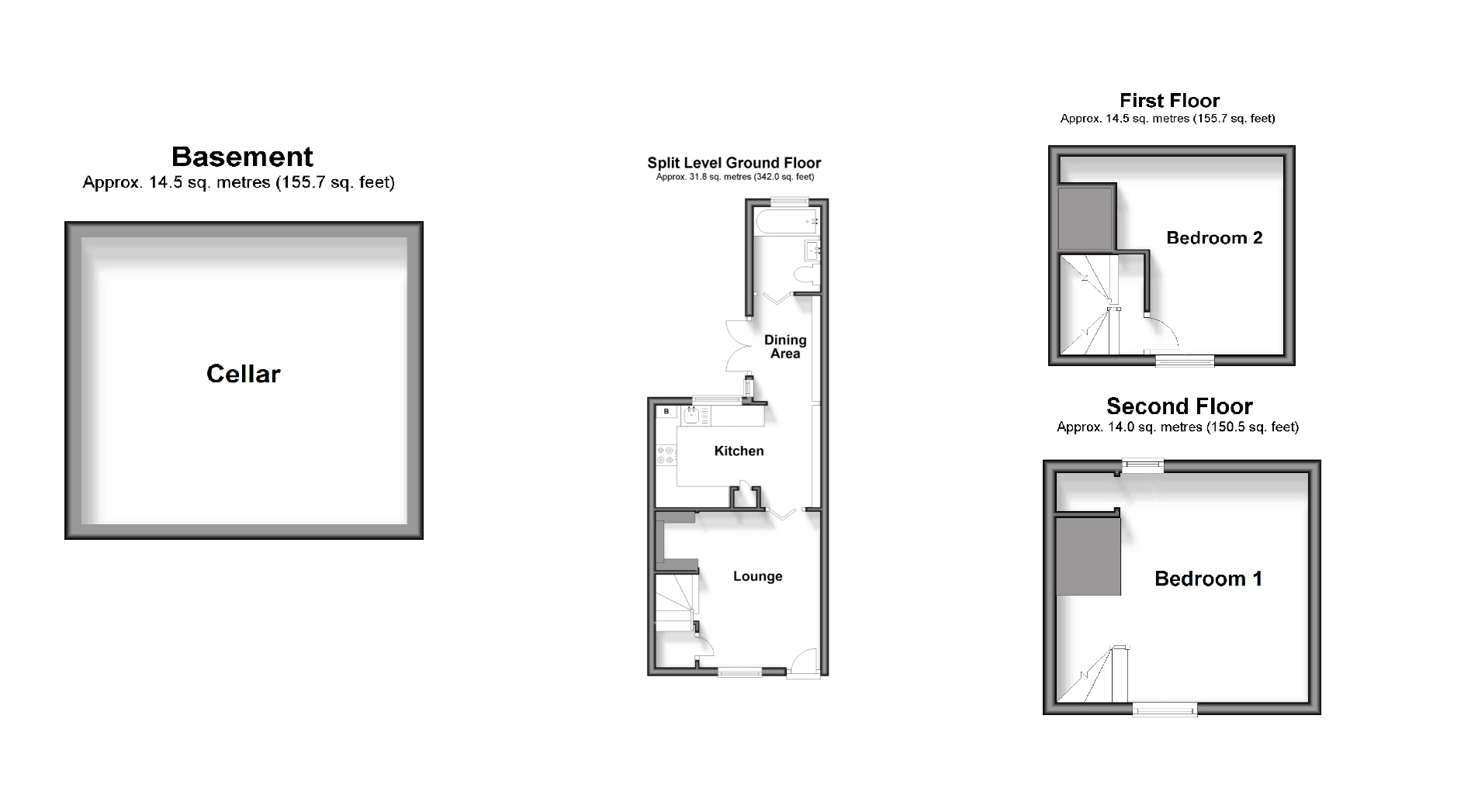
  • Internal area

    803 sqf
  • Property type

    House
  • Year built

    Ask Agent

Key facts

  • No Chain
  • Station (Within 1.2 miles)

Property description

Robinson Michael & Jackson present this 2 bedroom immaculate terraced cottage built in approximately the 1790's. This home bursts with character throughout its four levels.

Brochures

No information available. Please contact the agent for details.

Property Location

Gillingham, Gillingham, ME7 1HL

Nearest stations

Nearest schools

Utility supply

Electricity
Water
Heating
Broadband
Sewerage

Rights and restrictions

Private rights of way
Public rights of way
Listed property
Restrictions

Broadband speed