Homesearch Logo

£380,000

Bradleys

Okehampton, Okehampton, EX20 1XJ

  • Bedrooms

    4
  • Bathrooms

    2
  • Internal area

    1,211 sqf
  • Property type

    House
  • Year built

    Ask Agent

Key facts

  • Ground Floor WC

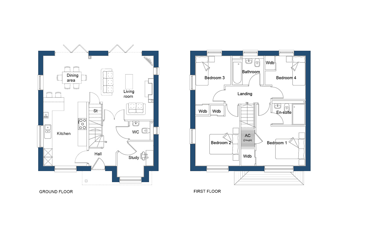
Property description

The Tennyson is an imposing four bedroom detached family home on a prime plot overlooking the open space, on the sought after development of Abbeyford Vale which is less than a mile from Okehampton centre. This home boasts specification finishes to a high standard with a garage a...

Additional text is available below.

Brochures

No information available. Please contact the agent for details.

Property Location

Okehampton, Okehampton, EX20 1XJ

Nearest stations

Nearest schools

Utility supply

Electricity
Water
Heating
Broadband
Sewerage

Rights and restrictions

Private rights of way
Public rights of way
Listed property
Restrictions

Broadband speed