Homesearch Logo

£395,000

Bradleys

Okehampton, Okehampton, EX20 1XJ

  • Bedrooms

    4
  • Bathrooms

    2
  • Internal area

    1,211 sqf
  • Property type

    House
  • Year built

    Ask Agent

Key facts

  • Ground Floor WC

Property description

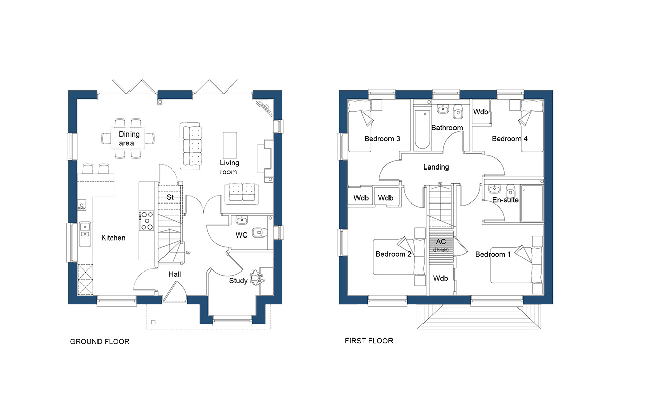
PLOT 91 - A FOUR BEDROOM DETACHED FAMILY HOME with a study, ENSUITE TO MASTER BEDROOM, GARAGE and ADDITIONAL PARKING! Personalise your brand new home with choice of kitchen, tiles and flooring. Call now to book your site visit!

Brochures

No information available. Please contact the agent for details.

Property Location

Okehampton, Okehampton, EX20 1XJ

Nearest stations

Nearest schools

Utility supply

Electricity
Water
Heating
Broadband
Sewerage

Rights and restrictions

Private rights of way
Public rights of way
Listed property
Restrictions

Broadband speed