Homesearch Logo

£395,000

Bradleys

Okehampton, Okehampton, EX20 1XJ

  • Bedrooms

    4
  • Bathrooms

    2
  • Internal area

    1,211 sqf
  • Property type

    House
  • Year built

    Ask Agent

Key facts

  • Ground Floor WC

Property description

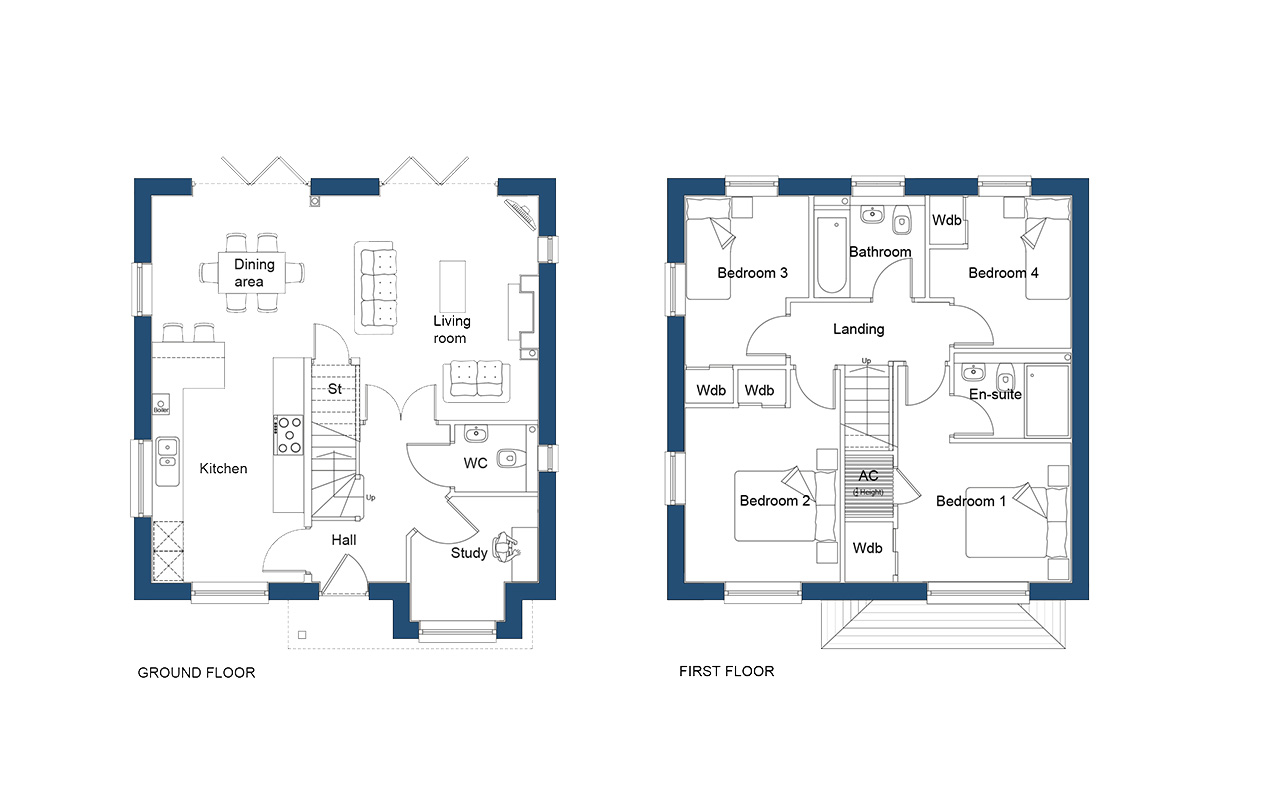
Plot 92 (The Tennyson) is a stunning four-bedroom detached family home, situated on one of the prime plots of the highly desirable Abbeyford Vale development. Boasting views of the surrounding open space, this exceptional property offers a superior standard of finish throughout....

Additional text is available below.

Brochures

No information available. Please contact the agent for details.

Property Location

Okehampton, Okehampton, EX20 1XJ

Nearest stations

Nearest schools

Utility supply

Electricity
Water
Heating
Broadband
Sewerage

Rights and restrictions

Private rights of way
Public rights of way
Listed property
Restrictions

Broadband speed