Homesearch Logo
Under Offer

£215,000

Greenslade Taylor Hunt

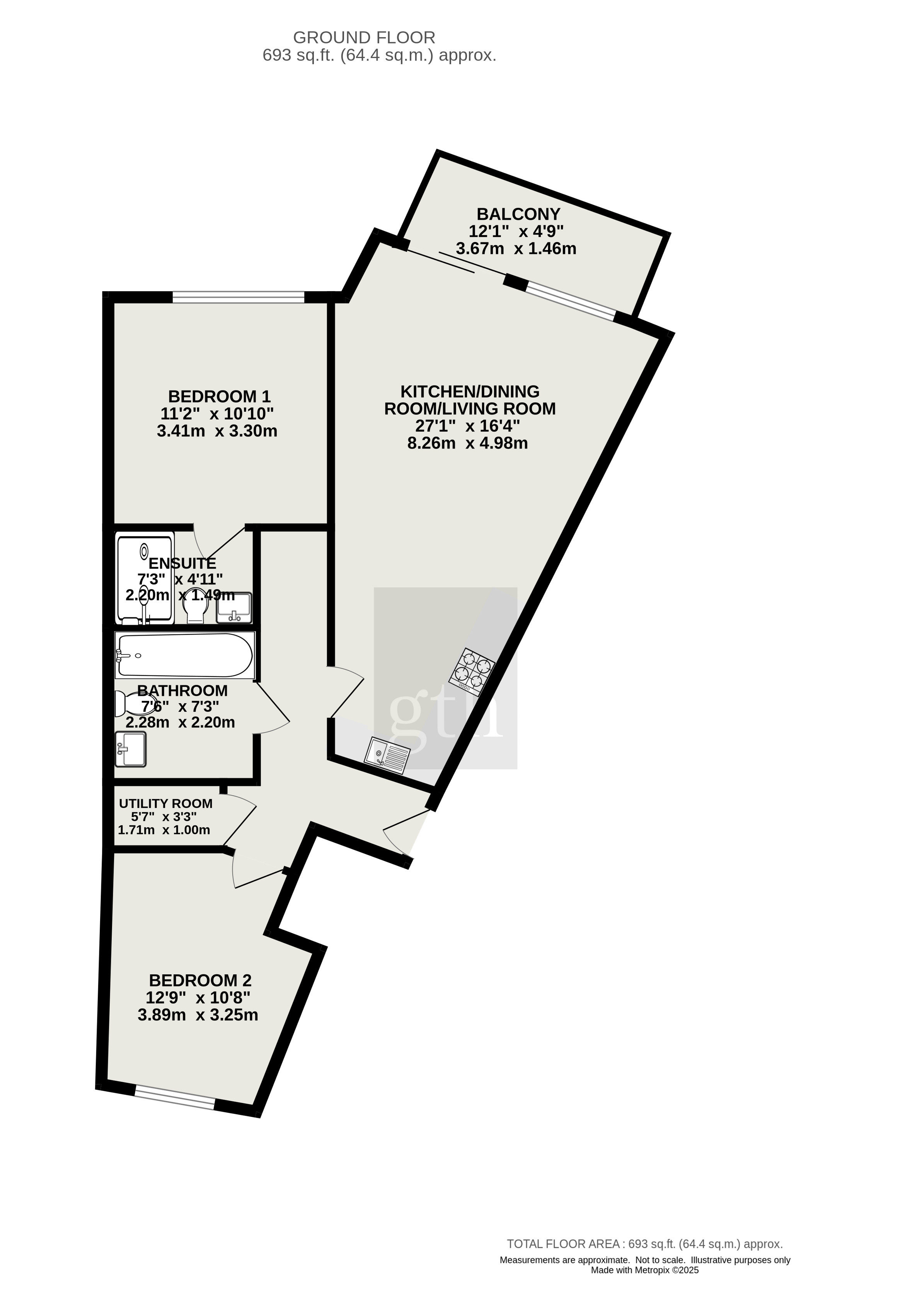
Youngman Place, Youngman Place, TA1 1AS

  • Bedrooms

    2
  • Bathrooms

    1
  • Internal area

  • Property type

    Flat
  • Year built

    Ask Agent

Property description

Spacious first floor flat two bedroom apartment with balcony overlooking River Tone set close to the town centre.

Brochures

No information available. Please contact the agent for details.

Property Location

Youngman Place, Youngman Place, TA1 1AS

Nearest stations

Nearest schools

Utility supply

Electricity
Water
Heating
Broadband
Sewerage

Rights and restrictions

Private rights of wayNo
Public rights of wayNo
Listed propertyNo
RestrictionsNo

Broadband speed