Homesearch Logo

£350,000

Curchods

*, GU12 6DF

  • Bedrooms

    3
  • Bathrooms

    1
  • Internal area

  • Property type

    House
  • Year built

    Ask Agent

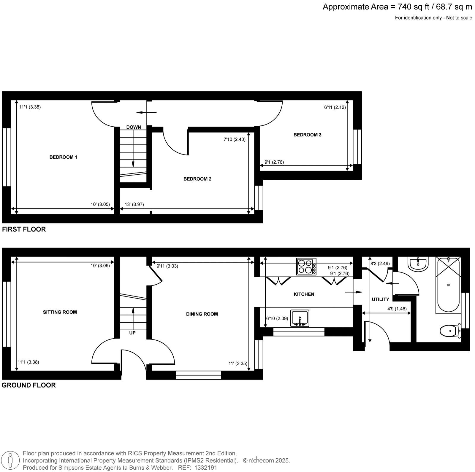
Property description

A pretty attached character cottage in a popular location in Ash close to the station and The Ranges. The cottage is offered with no onward chain and offers traditional accommodation comprising sitting room, separate dining room with understairs storage and arch through to the fi...

Additional text is available below.

Brochures

No information available. Please contact the agent for details.

Property Location

*, GU12 6DF

Nearest stations

Nearest schools

Utility supply

Electricity
Water
Heating
Broadband
Sewerage

Rights and restrictions

Private rights of way
Public rights of way
Listed property
Restrictions

Broadband speed