Homesearch Logo

£1,500,000

Jackson Stops Country

Reigate, Reigate, RH2 7BJ

  • Bedrooms

    4
  • Bathrooms

    2
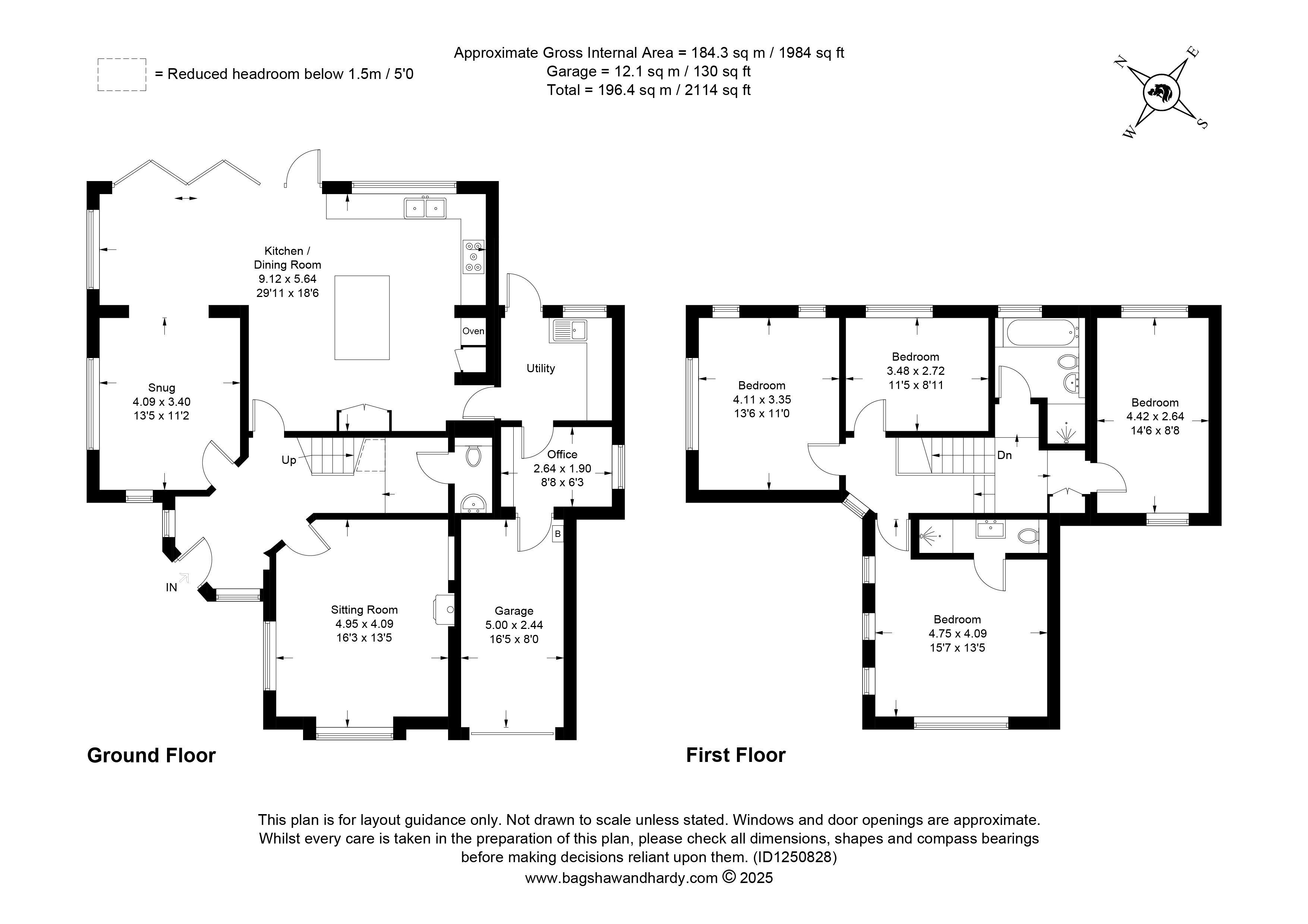
  • Internal area

    2,114 sqf
  • Property type

    House
  • Year built

    Ask Agent

Property description

A STYLISH AND BEAUTIFULLY PRESENTED DETACHED FAMILY HOME IN A WELL-REGARDED POSITION, CLOSE TO EXCELLENT LOCAL SCHOOLS AND THE TOWN CENTRE Originally constructed in the 1960s, this beautifully presented detached property has been stylishly and thoughtfully renovated and extended,...

Additional text is available below.

Brochures

No information available. Please contact the agent for details.

Property Location

Reigate, Reigate, RH2 7BJ

Nearest stations

Nearest schools

Utility supply

Electricity
Water
Heating
Broadband
Sewerage

Rights and restrictions

Private rights of wayNo
Public rights of wayNo
Listed propertyNo
RestrictionsNo

Broadband speed