Homesearch Logo
Under Offer

£695,000

Greenslade Taylor Hunt

Okehampton, Okehampton, EX20 3LZ

  • Bedrooms

    4
  • Bathrooms

    3
  • Internal area

    1,817 sqf
  • Property type

    House
  • Year built

    Ask Agent

Key facts

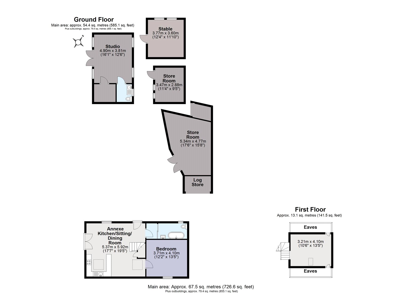
  • Outbuildings
  • Annex

Property description

A charming, detached home in a delightful rural setting with an open outlook over rolling Devon countryside. Enjoying a detached two bed annexe, a studio and mature gardens. DISTANCES Hatherleigh – 2.7 miles Okehampton – 7.5 miles The A30 – 8.3 miles (All distances are approximat...

Additional text is available below.

Brochures

No information available. Please contact the agent for details.

Property Location

Okehampton, Okehampton, EX20 3LZ

Nearest stations

Nearest schools

Utility supply

Electricity
Water
Heating
Broadband
Sewerage

Rights and restrictions

Private rights of way
Public rights of way
Listed propertyNo
Restrictions

Broadband speed