Homesearch Logo
Under Offer

£1,299,950

Jackson Stops Country

Reigate, Reigate, RH2 9DJ

  • Bedrooms

    5
  • Bathrooms

    1
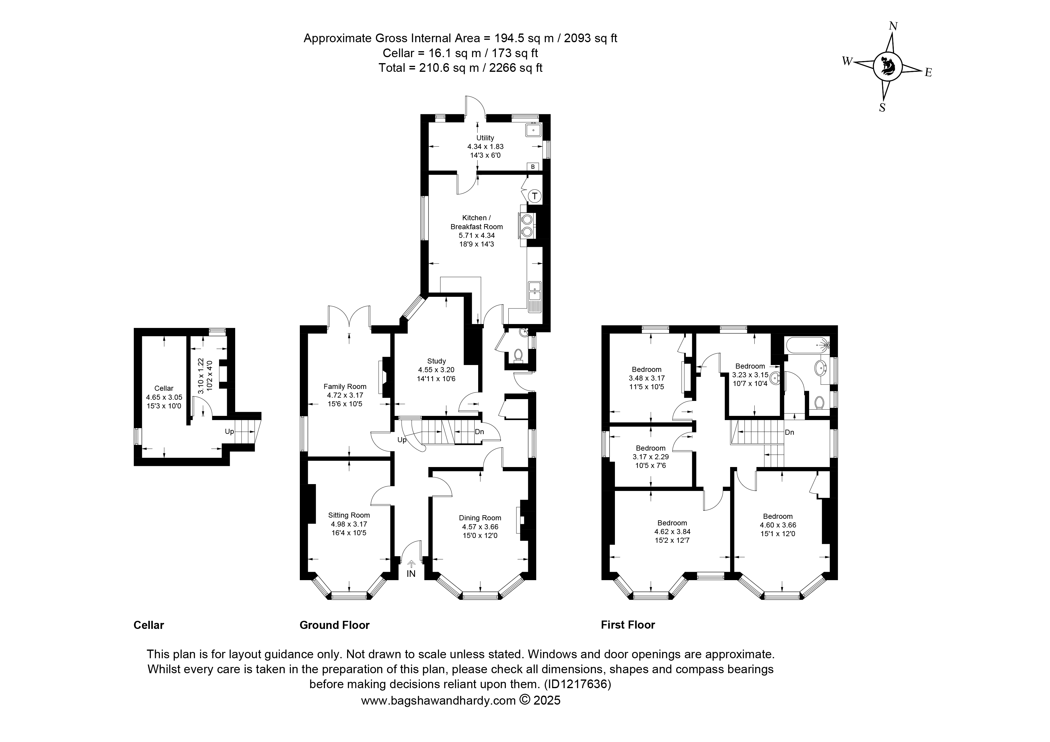
  • Internal area

    2,093 sqf
  • Property type

    House
  • Year built

    Ask Agent

Property description

A HANDSOME DOUBLE FRONTED DETACHED PERIOD PROPERTY IDEALLY LOCATED FOR REIGATE’S TOWN CENTRE AMENITIES Stafford House is an elegant, double-fronted Victorian residence, offered to the market for the first time in over fifty years. This fine property is a wonderful example of peri...

Additional text is available below.

Brochures

No information available. Please contact the agent for details.

Property Location

Reigate, Reigate, RH2 9DJ

Nearest stations

Nearest schools

Utility supply

Electricity
Water
Heating
Broadband
Sewerage

Rights and restrictions

Private rights of wayNo
Public rights of wayNo
Listed propertyNo
RestrictionsNo

Broadband speed