Homesearch Logo
Under Offer

£385,000

Sarah Mains

Whickham, Whickham, NE16 5JR

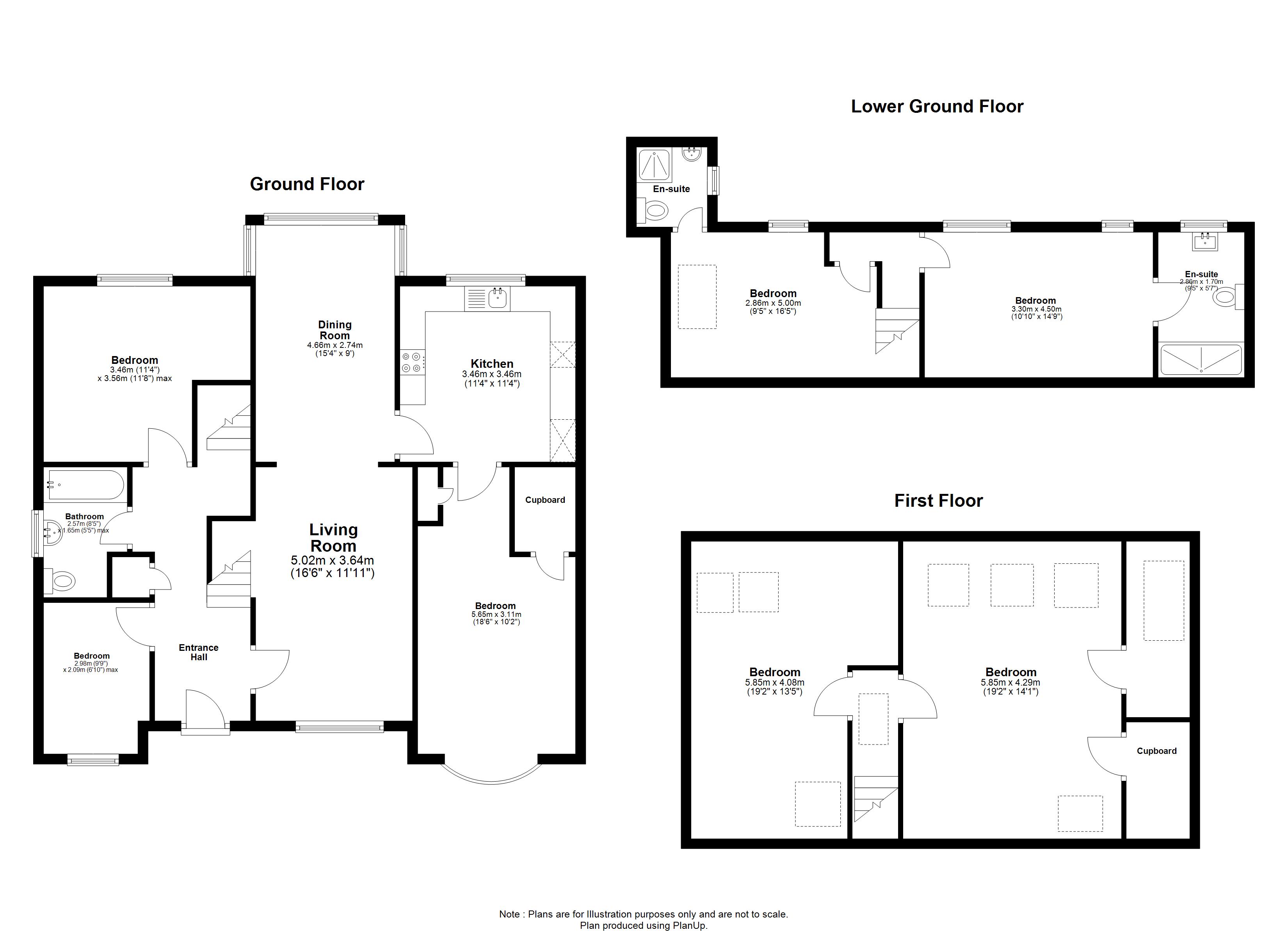
  • Bedrooms

    5
  • Bathrooms

    3
  • Internal area

  • Property type

    House
  • Year built

    Ask Agent

Property description

An Exceptional Detached Residence in a Prime Whickham Location with Outstanding Views We are delighted to present this outstanding detached residence set within one of Whickham’s most sought-after residential locations. Perfectly blending space, style, and versatility, this impre...

Additional text is available below.

Brochures

No information available. Please contact the agent for details.

Property Location

Whickham, Whickham, NE16 5JR

Nearest stations

Nearest schools

Utility supply

Electricity
Water
Heating
Broadband
Sewerage

Rights and restrictions

Private rights of way
Public rights of way
Listed property
Restrictions

Broadband speed