Homesearch Logo

£125,000

J W Wood

Consett, Consett, DH8 8HE

  • Bedrooms

    2
  • Bathrooms

    2
  • Internal area

  • Property type

    House
  • Year built

    Ask Agent

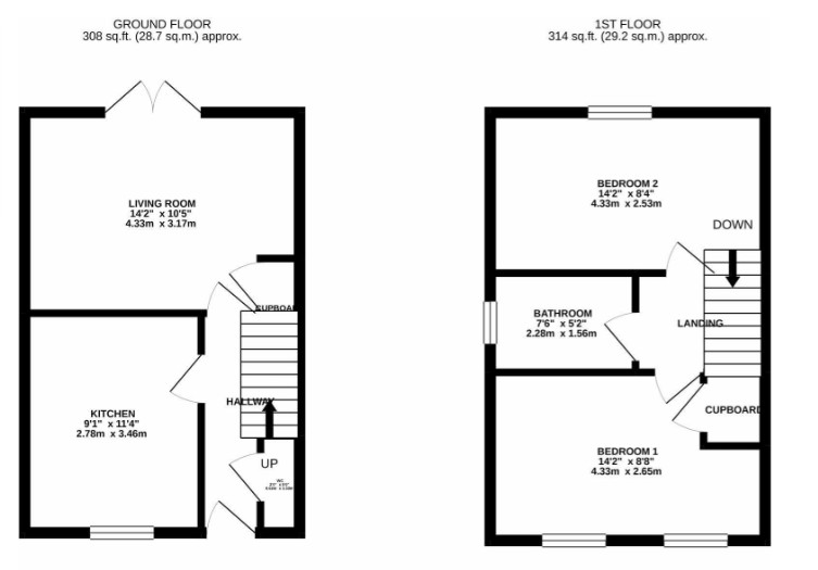
Property description

A well-presented terraced home situated in a small cul-de-sac, close to the edge of this modern estate in Moorside. This house benefits from UPVC double glazing and gas central heating and accommodation comprises: entrance hall, W.C., fitted kitchen, lounge to rear with French do...

Additional text is available below.

Brochures

No information available. Please contact the agent for details.

Property Location

Consett, Consett, DH8 8HE

Nearest stations

Nearest schools

Utility supply

Electricity
Water
Heating
Broadband
Sewerage

Rights and restrictions

Private rights of way
Public rights of way
Listed property
Restrictions

Broadband speed