Homesearch Logo
Under Offer

£850,000

College and County Sales Ltd

Lexden, Lexden, CO3 4AJ

  • Bedrooms

    4
  • Bathrooms

    4
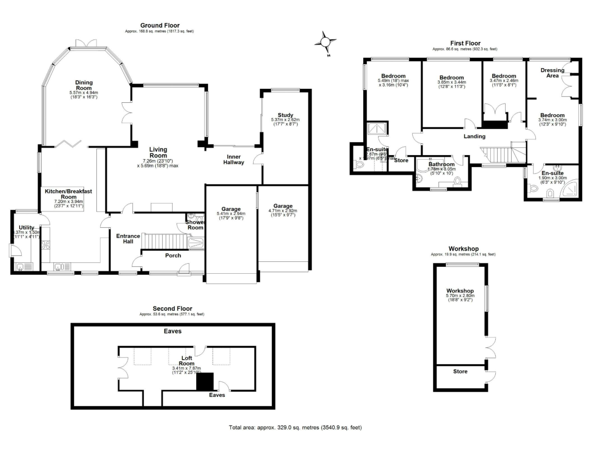
  • Internal area

    3,540 sqf
  • Property type

    House
  • Year built

    Ask Agent

Key facts

  • Outbuildings

Property description

Offered with no onward chain is this spacious 1930’s four bedroom, three reception family home set within a quiet private road. The accommodation is laid out over three levels and amounts to an impressive 3540 sqft. There is a large South facing garden and two garages. Superb ene...

Additional text is available below.

Brochures

No information available. Please contact the agent for details.

Property Location

Lexden, Lexden, CO3 4AJ

Nearest stations

Nearest schools

Utility supply

Electricity
Water
Heating
Broadband
Sewerage

Rights and restrictions

Private rights of way
Public rights of way
Listed property
Restrictions

Broadband speed